直角式自清洗过滤器

高效过滤 · 自动清洗 · 智能控制 · 广泛适用

立即咨询:13903732893

设备简介

高效智能过滤解决方案

直角式自清洗过滤器采用机电一体化设计,具有过滤精度高、纳污量大、自动化程度高等特点。过滤精度从50至5000微米可选,用户可根据实际工况定制。设备设有电机过载保护,可有效保护电机,确保设备长期稳定运行。

设备由驱动机构、控制管路、主管组件、滤芯组件、清洗机构等主要部件组成,采用先进的自动清洗技术,清洗时间短,排污耗水量少(不超过总流量的3%),真正实现清洗排污时系统不间断供水。

维修性强、安装拆卸简便,与用户管线的连接采用国标法兰连接,通用性强,广泛应用于各种工业水处理场景。

过滤介质:

水体悬浮物、颗粒物,水质污垢、菌藻、锈蚀等

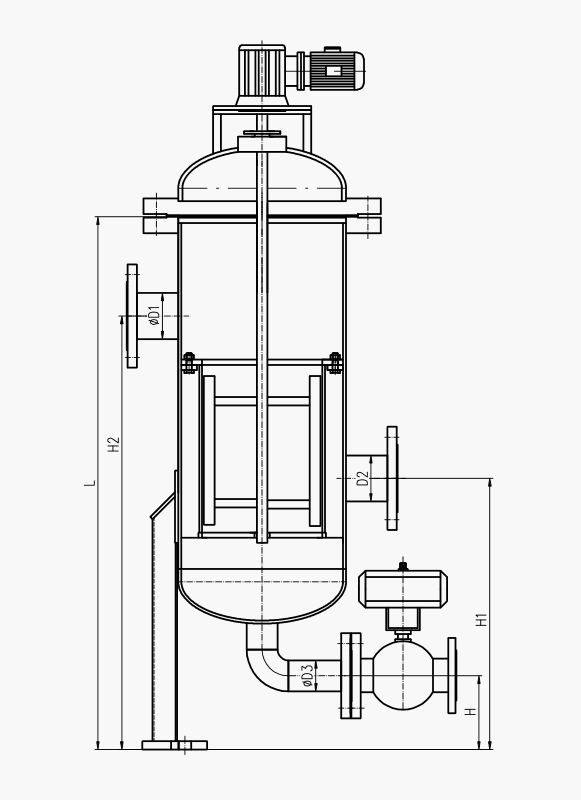
直角式自清洗过滤器外观

工作原理

直角式自清洗过滤器工作原理

智能过滤与清洗系统

全自动自清洗过滤器具有对原水进行过滤并自动对滤芯进行清洗排污的功能,清洗排污时系统不间断供水,保证生产连续运行。

设备清洗有两种控制方式:自动控制和手动控制。

自动控制:分为定时和压差两种方式。在过滤时间定时器上设定过滤时间,当过滤时间到,启动排污;同时控制系统实时将系统压差与设定压差相比较,当系统压差达到设定值时,过滤器进行清洗排污。

手动控制:将操作面板上的手动/自动选择开关拨到手动位置,过滤器进行排污。操作简单直观,便于设备调试和维护。

排污时间由排污时间定时器设定,排污结束后系统自动恢复至初始状态,为下一过滤工序做好准备。

技术参数

直角式自清洗过滤器技术参数示意图

核心性能指标

使用压力

0.2~2.5MPa

使用温度

≤80°C

使用电压

380V 50HZ

过滤精度

50~5000微米可选

反洗耗水量

≤2%

清洗时间

60s可调

罐体材质

Q235B、304、316L、碳钢衬胶

清洗刷材质

304、316L

控制方式

手动、自动(压差、时间)

滤芯材质

304、316L、2205

定制服务:可根据不同工况情况定制设备参数和配置

产品型号参数表

罐体规格 进出口规格 最大流量(t/h) 精度等级 电机功率/减速机型号
Φ273*1000 DN25-DN50 50 ≥50μm 0.18KW/RV040
Φ325*1200 DN80-DN125 100 ≥100μm 0.37KW/RV063
Φ426*1300 DN150 200 ≥200μm
Φ480*1550 DN200 300 ≥300μm
Φ530*1650 DN250 450 ≥300μm 0.75kw/RV075
Φ600*1750 DN300 550 ≥300μm
Φ700*2000 DN350 700 ≥500μm
Φ800*2150 DN400 1000 ≥800μm
Φ900*2300 DN450 1200 ≥1000μm
Φ1000*2500 DN500 1500 ≥1500μm
Φ1100*2600 DN600 1800 ≥3000μm 1.5kw/RV090
Φ1200*2800 DN700 2300

产品特点

高精度过滤

过滤精度默认为100微米,可选范围50-5000微米,过滤面积大,纳污量高,用户可根据实际工况定制。

智能清洗系统

清洗方式简单,清洗循环电子监控,实现自动清洗排污。控制系统参数均可调节,满足不同工况需求。

多重保护机制

设有电机过载保护,有效保护电机。设备运行稳定可靠,使用寿命长,维护成本低。

高效节水

清洗排污时不间断供水、无需旁路,清洗时间短,排污耗水量少(不超过总流量的3%)。

设备优势

内刮刀系统

• 采用不锈钢转轴搭配四氟刮板

• 刮刀和滤元紧密贴合,刮出效果好

• 滤网通透率高,耐磨耐高温

PLC控制系统

• 自动识别内杂质沉积程度

• 多种控制方式:压差控制、时间设定控制、手动控制

• 一键切换,自动运行,可根据工况定制

高性能精密滤元

• 采用304/316L不锈钢楔形金属网

• 支持20-500μm定制,不易堵塞,易清洗

• 压损小,维护成本低,适用于高粘度液体

设备关键部件

• 选用进口双极减速机、电器元件

• 采用PLC西门子控制系统

• 选配电动球阀,确保高效稳定运行

应用范围

农业灌溉

原水处理

工业循环水

冷却水处理

造纸工业

塑料工业

电力行业

水质净化